매물번호 10005
매물번호 10005
  • 매물 정보
  • 매물 설명
  • 다른 매물
  • 담당자 정보
평으로 변환
맨 위로 이동
맨 아래로 이동
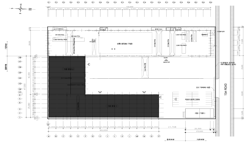
ㄷ자형 대형공장, 프레스기, 크레인, 갠트리, 호이스트 등 다수
매매70(부가세 별도)융자금50
전북 군산시 오식도동
매물 종류 공장(FACTORY)
건축면적 7541.49㎡ 2281평
층고 15.9M
층정보 지상 : 1층 / 지하 : -층
매물 정보
주소
전북 군산시 오식도동
거래 유형
매매
매물 종류
공장(FACTORY)
매매
70억 (부가세 별도)
융자금
50억
관리비
없음
면적정보
대지 13,865.2㎡ 4,194평 / 건축 7,541.49㎡ 2,281평 / 연 7,976.02㎡ 2,413평
층정보
지상 : 1층 / 지하 : -층 (층고 15.9M)
방향
북향 (주된 출입구 기준)
주용도
공장
매물상태
직접 운영중
전력
95Kw
대형트럭
진입가능
사무실 / 화장실
3 개 / 3 개
주차
가능 ( 총 주차대수 28 대 )
엘리베이터
0 대
화물용 엘리베이터
-
테마 종류
야드 넓은 공장,높은 공장,호이스트
입주가능일
즉시입주
사용승인일
2009-07-06
매물 확인일
2025-09-04
매물 설명

매물찾기요청

010.5407.0444

3D VR 보기

https://photos.app.goo.gl/whVnMVqdESaytKCi6  

  

매슬로우코리아

  

저희 매슬로우공인중개사사무소는 전국의 공장,창고 등 산업용 부동산을 전문으로 하고 있습니다.

저희를 통해 매물을 구하시는 고객님들을 위하여 3D VR서비스를 제공하고 있습니다. 이를 통해 중국, 일본 등 원거리에 있는 분들께도 공유가 가능합니다.

또한 특정 지역에 원하시는 평수와 공장 스펙 등을 알려주시면 가능한 최적합한 최단기간 내에 매물을 찾아드립니다

공장을 구하기 위한 정책자금부터, 공장등록, 공장리모델링, 공장설비이사 및 설비배치, 사업개시까지 원스탑으로 도와드립니다.

법인부동산 토탈관리솔루션을 직접 경험해보세요.

    

고려대학교 화학과 졸업

법률사무소 사무장 6년

공인중개사

물류관리사

무역영어1급

국제무역사

신용관리사

  

  

대형플랜트제작가능

대형기계제작가공

  

호이스트, 갠트리크레인, 프레스 설비 다수(직접 문의요망)

정반

기계장비 포함여부, 기존사업 포함여부에 따라 거래금액이 달라질 수 있음

사무실 3층

컨테이너 다수

토지  LH임대

  

군산시의 다른매물
전북 군산시 소룡동
보증금8,000만원월세8,681만원(부가세 별도)관리비21,700,000원
공장(FACTORY) 방 3개 / 화장실 4개
전북 군산시 소룡동
보증금3월세1,300만원(부가세 별도)
공장(FACTORY) 방 2개 / 화장실 4개
전북 군산시 소룡동
매매170(부가세 별도)
공장(FACTORY) 화장실 1개
전북 군산시 오식도동
매매60(부가세 별도)
공장(FACTORY) 전용 3,457㎡ 1평 / 대지 15,478.9㎡ 4,682.3672평 / 건축 3,572.56㎡ 1,080.6994평 / 연 3,457.56㎡ 1,045.9118평
전북 군산시 소룡동
보증금8월세8,681만원(부가세 별도)
공장(FACTORY) 방 10개 / 화장실 8개
전북 군산시 소룡동
매매300(부가세 별도)
공장(FACTORY) 방 10개 / 화장실 8개
전북 군산시 소룡동
매매100(부가세 별도)
공장(FACTORY) 방 8개 / 화장실 6개
전북 군산시 소룡동
매매120
공장(FACTORY) 방 7개 / 화장실 7개
전북 군산시 오식도동
보증금15,000월세1,500만원(부가세 별도)
공장(FACTORY) 방 6개 / 화장실 4개
전북 군산시 소룡동
매매10(부가세 별도)
공장(FACTORY) 방 2개 / 화장실 1개
전북 군산시 소룡동
매매63
공장(FACTORY) 방 7개 / 화장실 4개
전북 군산시 비응도동
보증금35,000월세3,500만원(부가세 별도)
창고(Warehouse) 대지 452,060.9㎡ 136,748.4223평 / 건축 8,757.63㎡ 2,649.1831평 / 연 8,626.67㎡ 2,609.5677평
전북 군산시 소룡동
매매26(부가세 별도)
공장(FACTORY) 화장실 1개
전북 군산시 오식도동
매매85,000(부가세 별도)융자금58,000
공장(FACTORY) 방 1개 / 화장실 1개
전북 군산시 오식도동
보증금3,800만원월세380만원(부가세 별도)
공장(FACTORY) 방 1개 / 화장실 1개
전북 군산시 오식도동
보증금11,000월세1,000만원(부가세 별도)
공장(FACTORY) 방 4개 / 화장실 4개
전북 군산시 오식도동
매매30(부가세 별도)
공장(FACTORY) 방 4개 / 화장실 4개
담당자 정보
박성연 대표/공인중개사
010-5407-0444 010-5407-0444
매슬로우공인중개사사무소
  • 대표자
    박성연
  • 소재지
    전북특별자치도 군산시 대학로 342, 26빌딩 1507호
  • 등록번호
    52130-2025-00005
  • 대표번호
    010-5407-0444
ㄷ자형 대형공장, 프레스기, 크레인, 갠트리, 호이스트 등 다수
매매70(부가세 별도)융자금50
전북 군산시 오식도동
공장(FACTORY)
건축 7541.49㎡ 건축 2281평
층고 15.9M
지상 : 1층 / 지하 : -층
매물 문의하기
박성연 대표/공인중개사
010-5407-0444 010-5407-0444
매슬로우공인중개사사무소
  • 대표자
    박성연
  • 소재지
    전북특별자치도 군산시 대학로 342, 26빌딩 1507호
  • 등록번호
    52130-2025-00005
  • 대표번호
    010-5407-0444
번역
최근 본매물
오식도동
70(부가세 별도)50
[10005]
ㄷ자형 대형공장, 프레스기, 크레인, 갠트리, 호이스트 등 다수
전북 군산시 오식도동
70(부가세 별도)50